Facebook
usa
Offers
FURNITURE
NEW ARRIVALS
MATTRESSES
HOMES

Discover La Vista Lotes

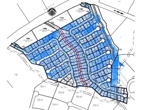
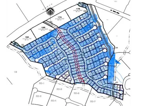
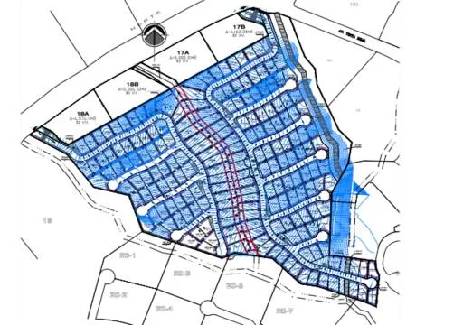
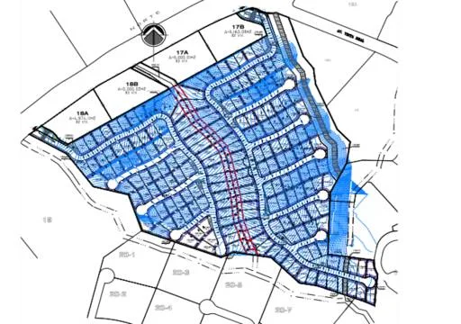
Lotes de Bosque Real es una exclusiva comunidad ubicada en una de las zonas más prestigiosas de Huixquilucan, Estado de México. Estos lotes residenciales ofrecen la oportunidad de construir la casa de tus sueños rodeada de naturaleza y con vistas espectaculares. Con acceso controlado, seguridad 24/7 y cercanía a campos de golf, colegios de prestigio, y centros comerciales, es el lugar ideal para quienes buscan tranquilidad y lujo en un entorno privilegiado. Cada lote está diseñado para garantizar privacidad y armonía con el entorno natural.

image
image

Culture

El fraccionamiento Bosque Real, en Huixquilucan, Estado de México, ofrece un estilo de vida exclusivo y moderno, rodeado de naturaleza. La zona combina tranquilidad, seguridad y sofisticación, con acceso a campos de golf, colegios de prestigio, y restaurantes de alta gama, ideal para familias y profesionales que buscan comodidad y lujo.

Centro de negocios

Recepción

gimnasio

estacionamiento para visitas

Caseta de vigilancia

vista a la montaña

vista de la ciudad

plusvalia

áreas verdes

reglamento interior

cerrada residencial

cercanía principales avenidas

cercanía supermercados

centros de trabajo de cercanos

Available properties

Lote 18C-16

Naucalpan De Juárez, Estado De México Properties: 1

$ 8,318,730.00 USD

Lote 18C-31

Naucalpan De Juárez, Estado De México Properties: 1

$ 11,427,315.00 USD

Lote 18C-60

Naucalpan De Juárez, Estado De México Properties: 1

$ 8,851,745.00 USD

Lote 18C-55

Naucalpan De Juárez, Estado De México Properties: 1

$ 11,907,735.00 USD

Lote 18C-26

Naucalpan De Juárez, Estado De México Properties: 1

$ 9,112,830.00 USD

Lote 17C-14

Naucalpan De Juárez, Estado De México Properties: 1

$ 8,727,810.00 USD

Lote 18C-53

Naucalpan De Juárez, Estado De México Properties: 1

$ 9,471,720.00 USD

Lote 18C-28

Naucalpan De Juárez, Estado De México Properties: 1

$ 8,859,030.00 USD

Lote 18C-57

Naucalpan De Juárez, Estado De México Properties: 1

$ 9,409,870.00 USD

Interested? Let’s talk.

Contact our representants

Bosque Real

State Agent

Bosque Real

Discover Naucalpan De Juarez

Naucalpan de Juárez, ubicado en el Estado de México, es un municipio que combina modernidad, tradición y una ubicación estratégica cerca de la Ciudad de México. Con colonias destacadas como Ciudad Satélite y Lomas Verdes, este lugar ofrece opciones residenciales para todos los gustos, rodeadas de servicios de alta calidad, hospitales, escuelas reconocidas y centros comerciales. Entre sus principales atractivos está el Parque Naucalli, un espacio ideal para paseos, deporte y actividades culturales. También cuenta con plazas comerciales como Plaza Satélite y La Cúspide, donde encontrarás tiendas, restaurantes exclusivos y entretenimiento. Además, su oferta gastronómica incluye desde comida típica mexicana en mercados hasta restaurantes gourmet. La conectividad de Naucalpan con vías como el Periférico permite disfrutar de lo mejor de la CDMX mientras se vive en un entorno más tranquilo y seguro. Aquí se equilibra la vida urbana con espacios naturales, una comunidad activa y actividades culturales constantes. Naucalpan es más que un lugar para vivir: es el hogar perfecto para quienes buscan comodidad, modernidad y calidad de vida.

Explore
image
Location
Blvrd Bosque Real 52770, Bosque Real, 52774 Naucalpan de Juárez, Méx., Mexico
Share now
Copied!
WhatsApp